A distinguished five-bedroom luxury home showcasing beautifully balanced living spaces and refined contemporary design.
The spacious hallway leads to a private home office and a cosy snug, while the impressive full-width kitchen/living/dining area opens seamlessly onto the garden through expansive glazing. The designer kitchen features a statement island, premium integrated appliances and a separate utility room. The property also benefits from a bedroom on the ground floor with an ensuite shower room.
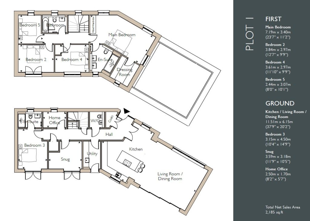
Upstairs, the principal suite includes a dressing room and indulgent ensuite, complemented by three further generous bedrooms and a family bathroom.
The property benefits from a double garage with EV car charging point, garden storage, solar panels and is EPC A-rated.
Dimensions
Ground Floor
Kitchen / Living / Dining Room
11.51m x 6.15m (37’9” x 20’2″)
Bedroom 3
3.15m x 4.50m (10’4” x 14’9″)
Snug
3.59m x 3.18m (11’9” x 10’5″)
Home Office
2.50m x 1.70m (8’2” x 5’7″)
First Floor
Main Bedroom
7.19m x 3.40m (23’7” x 11’2”)
Bedroom 2
3.84m x 2.97m (12’7” x 9’9”)
Bedroom 4
3.61m x 2.97m (11’10” x 9’9”)
Bedroom 5
2.44m x 3.07m (8’0” x 10’1”)
Features & Options
Construction
- Traditional construction with elevations comprising random stone, timber cladding and architectural features.
- Sedum grass roofs.
- Aluminium windows & doors.
- LABC 10 year guarantee.
Internal
- Central heating comprising Daikin air source heat pump supplying under floor heating throughout with individual room programmable room thermostats. Control via smartphone or tablet and remote operation over internet.
- Towel radiators in bathrooms with control independent of main heating system facilitating independent use in summer.
- Comprehensive electrical installation including energy efficient LED lighting throughout including suspended spotlights to vaulted ceiling areas and recessed downlights elsewhere.
- Fitted security system.
- Internal doors – Contemporary four panel shaker style in veneered oak with chrome furniture.
- Staircase – Completely oak.
- Decoration – Emulsion to walls with white ceilings and white gloss finish woodwork.
- Fitted wardrobe in main bedroom – Sliding glass fronted doors or hinged doors with shelf and hanging rail.
Home Network/Audio Entertainment Infrastructure
- An advanced network/TV infrastructure has been installed which supports the distribution of terrestrial television and data to multiple locations.
- TV aerial and distribution amplifier fitted as standard.
- Optional HD distribution to selected positions from comms position.
- An audio entertainment infrastructure has been installed which allows for music to be played via unobtrusive high quality in-ceiling speakers in reception rooms, bedrooms and bathrooms.
Full details available by request.
Kitchen
- Luxury fitted kitchen with a choice of quality finishes subject to specification and stage of construction.
- Fully integrated appliances.
- Granite worktops.
Bathrooms
- Main En-Suite
Villeroy & Boch sanitary ware comprising wall hung WC and wall hung basin with vanity unit under. Low profile shower tray with Hansgrohe chrome fittings featuring concealed thermostatic shower with fixed rain head and separate rinse head. Lakes shower enclosure. Marble to worksurfaces. - Secondary En-Suites Plot 1 & 2
Villeroy & Boch sanitary ware comprising wall hung WC and wall hung basin with vanity unit under. Low profile shower tray with Hansgrohe chrome fittings featuring concealed thermostatic shower with fixed rain head and separate rinse head. Lakes shower enclosure. Marble to worksurfaces. - Secondary En-Suites Plot 3
Villeroy & Boch sanitary ware comprising wall hung WC and wall hung basin with vanity unit under. Low profile shower tray with Hansgrohe chrome fittings featuring concealed thermostatic shower with fixed rain head and separate rinse head. Bath with Hansgrohe chrome fittings featuring concealed thermostatic bath valve with Exafill and separate rinse head. Marble to worksurfaces. - Bathroom
Villeroy & Boch sanitary ware comprising wall hung WC and wall hung basin with vanity unit under. Bath with concealed valve, Exafill, fixed shower head and hand
rinse. Lakes bath screen. Marble to worksurfaces. - Tiling
Bathrooms to be tiled to approximately 1.2m high throughout with
shower areas fully tiled to ceiling. Kitchen and bathroom floors to be tiled.
Tile choices available (subject to stage of construction) from a selected range.
External
- Resin bound gravel to development road.
- Block paving to private drives.
- Front gardens planted and/or turfed to planning approved landscape plan.
- Rear gardens levelled as far as practicable and prepared for customer to finish.
- External socket.
- External lights.
- External tap to front and rear.
- EV car charging point.
Services
- Mains electric and water services will be connected.
- Air source heat pump to heating and hot water.
- Solar Panels.
- Telephone/Broadband – FTTP – Fibre To The Premises.
- Foul sewer pumped and connected to adopted system.
- Surface water to SuDs system
Management Company
- Oversees the ecology area and development drive.
- Access to land to the north.
Upgrade options
- Flooring to areas other than kitchen and bathrooms.
- Kitchen & utility additions.
- Satellite dish.
- Audio options.
- HD distribution options.
- Ceiling mounted wireless access points.
- Additional wardrobes.
- Mirrors and Demista pads.
- Seed or turf to rear garden.
- Bathroom accessories.
- Water softener.
Let us help you move
Assisted move
Mortgage calculator
Stamp duty calculator
Ask a question
Do you have a question about this property?
Complete the form below and a member of our team will come back to you as soon as possible with an answer.
If you would rather speak with us directly, please call 01225 79 11 55.
Arrange a viewing
If you would like to view this property or others available on this development, please complete the form below and we will ask the agent to contact you to arrange a suitable date and time.
Any information you submit will be handled securely as outlined in our privacy policy.
